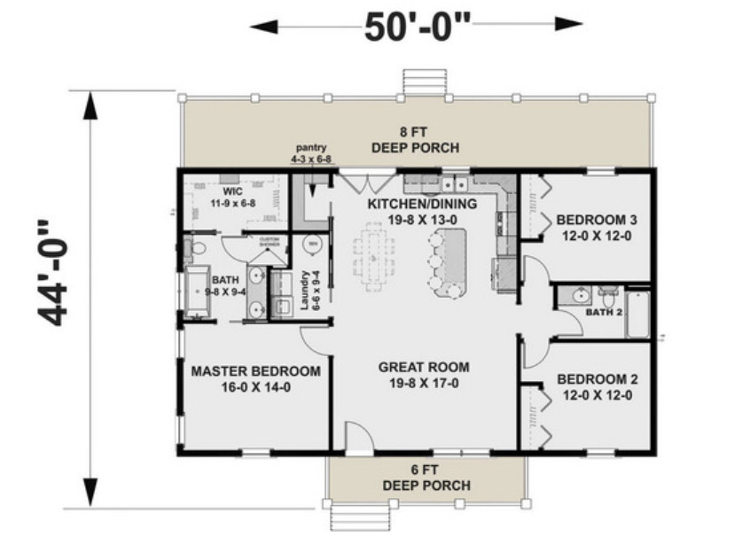
The Iris floorplan

  • 4 years ago
  • 0

Join The Discussion

Compare listings

Compare